Wohnbau Feldbreite, Baufelder A1 und A2, Emmenbrücke LU

Wohnbau Feldbreite, Baufelder A1 und A2, Emmenbrücke LU


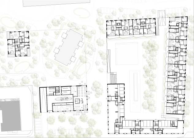
Das Areal war ein ehemaliges Industriegebiet mit einer Produktionsstätte für Betonelemente und Werkwohnhäuser der Schindler Lift AG, welches zu einem neuen Stadtteil entwickelt werden soll. Ein vorgängig ausgearbeiteter Quartier- und Grünplan diente als gemeinsame Grundlage für die jeweiligen Wettbewerbe, der insgesamt neun Baufelder.

Nördlich des Zentrums von Emmenbrücke liegt das Areal Feldbreite. Es wird durch die öffentliche Badeanstalt Mooshüsli im Norden, die Autobahn im Osten und die Seetalstrasse im Süden begrenzt. Ein gut frequentiertes Einkaufszentrum und ein durchgrüntes Wohnquartier bilden gegen Westen die nächste Nachbarschaft. Die Seetalstrasse dient als Hauptverbindung zwischen dem Zentrum von Emmenbrücke und Emmen Dorf.

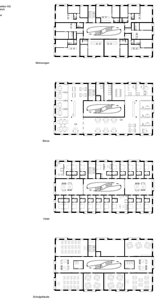
Der Wettbewerbsvorschlag für die Baufelder A1 und A2 umfasst den neu geschaffenen Meili-Platz als Zugang und Auftakt ins Quartier. Der Platz funktioniert zusammen mit dem bestehenden Einkaufspark als kleines, lokales Zentrum mit Bushaltestelle. Die grössere Gebäudehöhe am Platz unterstützt und betont den neuen Angelpunkt. Das Erdgeschoss nimmt Geschäfte und ein Restaurant auf. Die Obergeschosse sind für Wohnungen und Büros konzipiert.

Weiter gehören die aufgebrochene Blockrandbebauung entlang der Mooshüslistrasse und das turmgleiche Volumen im Westen dazu. Die Neubauten sind mit Rücksichtnahme auf die denkmalpflegerisch bedeutenden Reihenhäuser von Armin Meili gesetzt, die es zu erhalten galt. Die Blockrandbebauung beherbergt Mietwohnungen von unterschiedlicher Grösse und Grundrissgestaltung. Das turmgleiche Volumen ist für Eigentumswohnungen reserviert.


Eckdaten

  • Ort: Emmenbrücke LU

  • Verfahren:
    Investorenwettbewerb 2012, 1. Preis
    Projektierung 2013
    Ausführung 2014 /15

  • Aufgabe:
    Neubau, Nachverdichtung

  • Projektentwicklung:
    BSS&M Real Estate AG, Zürich
    Danilo Menegotto, Judith Hornberger

  • Stadtsoziologie:
    Zeugin-Gölker Immobilienstrategien GmbH, Zürich
    Ulrike Gölker

  • Landschaftsarchitektur:
    Müller Illien Landschaftsarchitekten, Zürich
    Klaus Müller

  • Kostenplanung / Bauleitung:
    Rhyner Baumanagement AG, Glarus GL
    Fridolin Rhyner

  • Investor:

    Swiss Life Asset Management AG,
    Marino Küng


  • Downloads

Wohnbau Feldbreite, Baufelder A1 und A2, Emmenbrücke LU
Wohnbau Feldbreite, Baufelder A1 und A2, Emmenbrücke LU
Wohnbau Feldbreite, Baufelder A1 und A2, Emmenbrücke LU
Wohnbau Feldbreite, Baufelder A1 und A2, Emmenbrücke LU
Wohnbau Feldbreite, Baufelder A1 und A2, Emmenbrücke LU
Wohnbau Feldbreite, Baufelder A1 und A2, Emmenbrücke LU
Wohnbau Feldbreite, Baufelder A1 und A2, Emmenbrücke LU
Wohnbau Feldbreite, Baufelder A1 und A2, Emmenbrücke LU
Wohnbau Feldbreite, Baufelder A1 und A2, Emmenbrücke LU
Wohnbau Feldbreite, Baufelder A1 und A2, Emmenbrücke LU
Wohnbau Feldbreite, Baufelder A1 und A2, Emmenbrücke LU
Wohnbau Feldbreite, Baufelder A1 und A2, Emmenbrücke LU
Wohnbau Feldbreite, Baufelder A1 und A2, Emmenbrücke LU
Wohnbau Feldbreite, Baufelder A1 und A2, Emmenbrücke LU
Wohnbau Feldbreite, Baufelder A1 und A2, Emmenbrücke LU
Wohnbau Feldbreite, Baufelder A1 und A2, Emmenbrücke LU
Wohnbau Feldbreite, Baufelder A1 und A2, Emmenbrücke LU
Wohnbau Feldbreite, Baufelder A1 und A2, Emmenbrücke LU
Wohnbau Feldbreite, Baufelder A1 und A2, Emmenbrücke LU
Wohnbau Feldbreite, Baufelder A1 und A2, Emmenbrücke LU
Wohnbau Feldbreite, Baufelder A1 und A2, Emmenbrücke LU
Wohnbau Feldbreite, Baufelder A1 und A2, Emmenbrücke LU
Wohnbau Feldbreite, Baufelder A1 und A2, Emmenbrücke LU
Wohnbau Feldbreite, Baufelder A1 und A2, Emmenbrücke LU
Wohnbau Feldbreite, Baufelder A1 und A2, Emmenbrücke LU
Wohnbau Feldbreite, Baufelder A1 und A2, Emmenbrücke LU
Wohnbau Feldbreite, Baufelder A1 und A2, Emmenbrücke LU
Wohnbau Feldbreite, Baufelder A1 und A2, Emmenbrücke LU