**Strassenansicht**  Das grossbürgerliche Reihenhaus zeichnet sich durch einem vorspringenden Erker mit gusseisernem Balustraden-Geländer und reichhaltig verzierten Fensterleibungen aus. Die Hauseingangstüre sowie die Fenster sind in roh belassener Eiche gehalten.

Umbau und Sanierung Peter Merian–Strasse, Basel–Stadt BS


Das grossbürgerliche Wohnhaus stammt aus dem Jahr 1910 und liegt in einem zentrumsnahen, sehr ruhigen und grünen Stadtquartier.

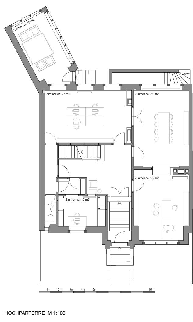
Das Wohnhaus wurde mit dem Umbau in drei grosszügige Geschosswohnungen unterteilt und das Dach zum Studio ausgebaut. Mit geringfügiger Anpassung der Treppengeometrie und der Verlegung des Dachaufganges gelang es, die bestehende Raumstruktur auf allen Etagen beinahe unverändert zu erhalten. Küchen und Bäder sind in die kleineren Zimmer integriert.

In Absprache mit der Denkmalpflege wurde die Fassade sorgfältig erneuert. Die Natursteinarbeiten konnten gesäubert und die Malerarbeiten aufgefrischt werden. Um die Energiebilanz zu verbessern, erhielten die bestehenden Eichenfenster neue Isoliergläser.

**Raumfolge Hochparterre ** Die Innenräume sind geprägt durch das Fischgrat Parkett in Eichen, den Lamberien, dem Wandtäfer, den vertäfelten Fensterleibungen und Gewänden, den in die Wände integrierten Wandschränken und den Raumfolgen als Enfilade. Decken und Wandoberflächen über dem Brusttäfer sind reichhaltig mit Stuckaturen ausgeschmückt.
**Enfilade Hochparterre ** Die Öffnungen der Enfilade als Raumverbindungen sind mit gestemmten Türen mit verzierten Füllungen, Zier- und schlagleisten sowie einem Kastenschloss mit Türknauf in Messing versehen.
**Raumfolge Hochparterre ** Die Innenräume sind geprägt durch das Fischgrat-Parkett in Eichen, den Lamberien, dem Wandtäfer, den vertäfelten Fensterleibungen und Gewänden, den in die Wände integrierten Wandschränken und den Raumfolgen als Enfilade. Decken und Wandoberflächen über dem Brusttäfer sind reichhaltig mit Stuckaturen ausgeschmückt.
**Gartenseite** Die Gartenseite ist in ihren Verzierungen bescheidener gehalten, einzig die Sandsteingewände und die Eichenfenster zeichnen die Fassade aus. Drei ungleichgrosse Schleppgauben prägen das Mansardendach. Die eingeschossige Veranda mit den Fensterverglasungen in den Sandsteingewänden schiebt sich in den Gartenraum. Die Dachterrasse ist mit einer üppig wachsenden Glyzinie (Blauregen oder Wisteria) überwachsen.
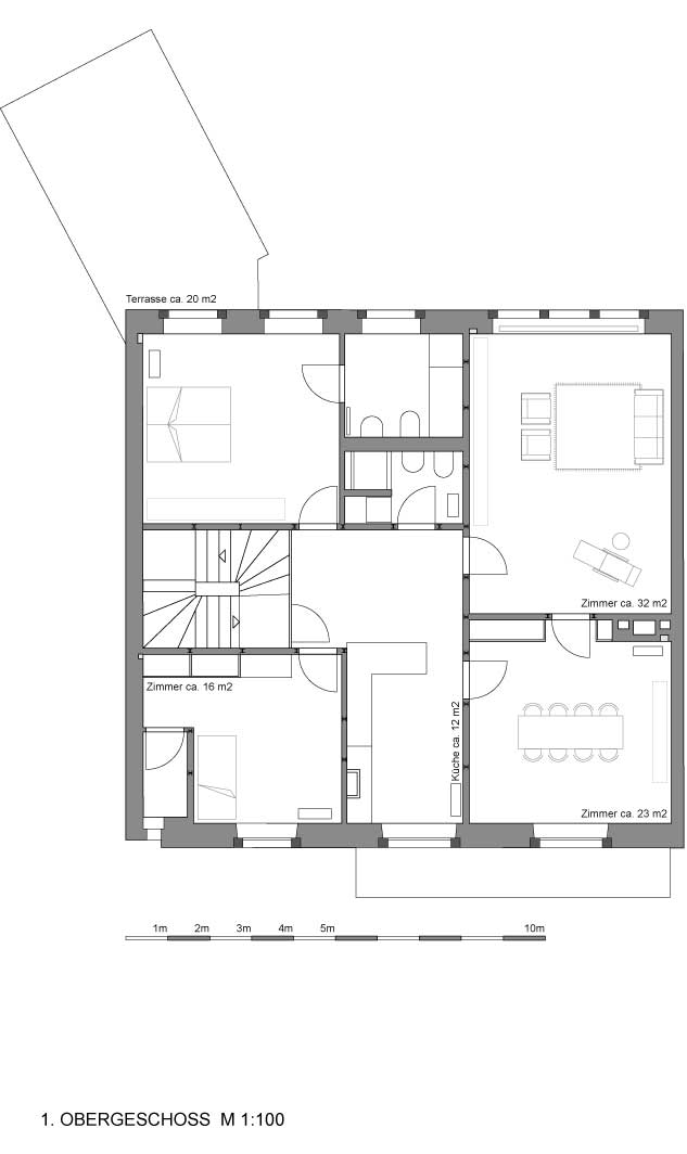
**Küche Obergeschoss** Die Küche wurde als offene Küche in eines der kleineren Zimmer eingebaut. Ein Möbel in der Höhe einer Bartheke trennt die Küche vom Entrée als Vorraum.
**Schlafraum Obergeschoss ** Die Räume des Obergeschosses sind ebenfalls geprägt durch das Fischgrat-Parkett in Eichen, den Lamberien, dem Wandtäfer, den vertäfelten Fensterleibungen und -gewänden, den in die Wände integrierten Wandschränken und den Oberlichtfenster in Eiche. Die Decken und Wandoberflächen über dem Brusttäfer sind reichhaltig mit Stuckaturen ausgeschmückt.
**Strassenansicht** Das grossbürgerliche Reihenhaus zeichnet sich durch einen vorspringenden Erker mit gusseisernem Balustraden-Geländer und reichhaltig verzierten Sandsteingewänden aus. Drei Dachgauben dominieren das Mansardendach. Die beiden Rand-Gauben sind mit einem Rundbogendach und die mittlere mit einem klassizistischen Giebeldach ausgebildet. Die Hauseingangstüre sowie die Fenster sind in roh belassener Eiche gehalten.
**Fensterfront Hochparterre** Die dreiteilige Fensterfront ist mit Oberlichtfenstern und einem Kämpfer versehen. Handgeschmiedete Stangenbeschläge mit Dreholiven in Messing schliessen die Fenster. Seitlich in den vertäfelten Fensterleibungen befinden sich die Rollgurten für die Holzrollladen. Unter dem Fenstersims in Eiche befindet sich der Rippenradiator aus Grauguss. Dieser wird durch einen mit Zierlöchern versehene Heizkörperverkeidung verdeckt.
**Dachraum**  Der Dachraum wird zum Studio ausgebaut. Einem Sternenhimmel gleich belichtet eine Vielzahl von Oberlichtfenster in unregelmässiger Verteilung den Dachraum. Der Kniestock ist mit einem Einbaumöbel als offenes Regal genutzt. Der dunkel gehaltenen Schiffsboden in Eicheparkett bildet mit dem ebenfalls dunkel gehaltenem Kniestockregal und dem Holzwerk des dachstuhls einen markanten Kontrast zu den weissen Gipsflächen der Dachschrägen.
Umbau Peter Merian–Strasse, Basel–Stadt BS, Grundriss Hochparterre
Umbau Peter Merian–Strasse, Basel–Stadt BS, Grundriss Obergeschoss