Ort: Kanzlerstrasse, Frauenfeld TG
Verfahren: Projektwettbewerb
auf Einladung, 1. Preis
Projektierung 2002
Ausführung 2004 /05Aufgabe: Umbau und Erweiterung
eines Wohnheimes für begleitetes WohnenBauleitung, Kostenplanung:
Heinz Giger, Sulgen TGFotograf:
Falk Baron Rausch von Traubenberg,
Hamburg DE

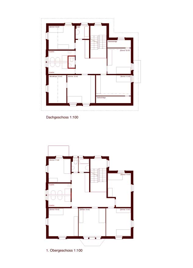
Umbau und Erweiterung Wohnheim Im Kanzler, Frauenfeld TG
Der zweigeschossige Anbau fügt sich nordseitig an das ehemalige Wohnhaus des frühen 20. Jahrhunderts an.
Der Neubau tritt von der Strassenseite eingeschossig in Erscheinung und belässt damit dem Bestand seine vertikale Wirkung.
Die innere Organisation beruht auf der Aufteilung des Raumprogramms in einen Gemeinschafts- und Individualbereich. Die Bewohnerzimmer sind im Altbau zusammengefasst. Zugleich sind dort im Hochparterre auch die Büros untergebracht. Die gemeinschaftlichen Räume liegen im Neubau. Aus dem Wohn- und Esszimmer ist die beeindruckende Fernsicht auf den Seerücken zu geniessen und eine überdeckte Pergola spendet im Sommer willkommenen Schatten. Im Untergeschoss befindet sich der Mehrzweck- und Arbeitsraum mit direktem Ausgang in den Garten.
Sollten sich die Bedürfnisse unerwartet ändern, können der Neu- und Altbau mit minimalen Eingriffen in drei unabhängige Wohnungen umgebaut werden.
Mit einfachen Sanierungsmassnahmen konnte im Altbau die vorhandene, wohnliche Stimmung der Zimmer erhalten werden. Der Neubau zeigt eine prägnante Fassade aus Sichtbackstein und ist im Innern mit zurückhaltender Farbigkeit gestaltet. Das Mobiliar und die Bewohnerutensilien stehen im Vordergrund.
















