Ort: Unterdorf, Sommeri TG
Verfahren: Projektwettbewerb
auf Einladung 2002, 1. Preis
Projektierung 2003
Ausführung 2004/05Aufgabe:
Erweiterung, NeubauFotograf:
Falk Baron Rausch von Traubenberg,
Hamburg DE

Erweiterung Bildungsstätte Sommeri, Sommeri TG
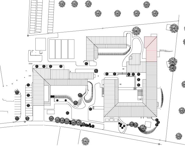
Die bestehenden Bauten bilden eine in sich geschlossene Anlage am Dorfrand mit Blick ins umliegende Grün.
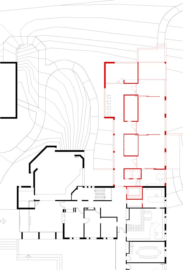
Der Erweiterungsbau zeichnet die vorhandene Anlage weiter. Mit der Verlängerung des einen Gebäudeflügels wird eine neue Lesbarkeit der Grundfigur eingeführt: Das bisher offene Nord-Ost-Ende wird geschlossen und die Kapelle in ihrer Sonderstellung als freie, eingeschobene Form gestützt. Alt- und Neubau werden - wie dies bei Bauten der Umgebung oft zu beobachten ist - unter einem gemeinsamen Dach zusammengefasst. Die Gebäudeteile, die aus unterschiedlichen Bauetappen stammen, sind an ihrer jeweils zeitgemässen Fassadenausbildung deutlich abzulesen.
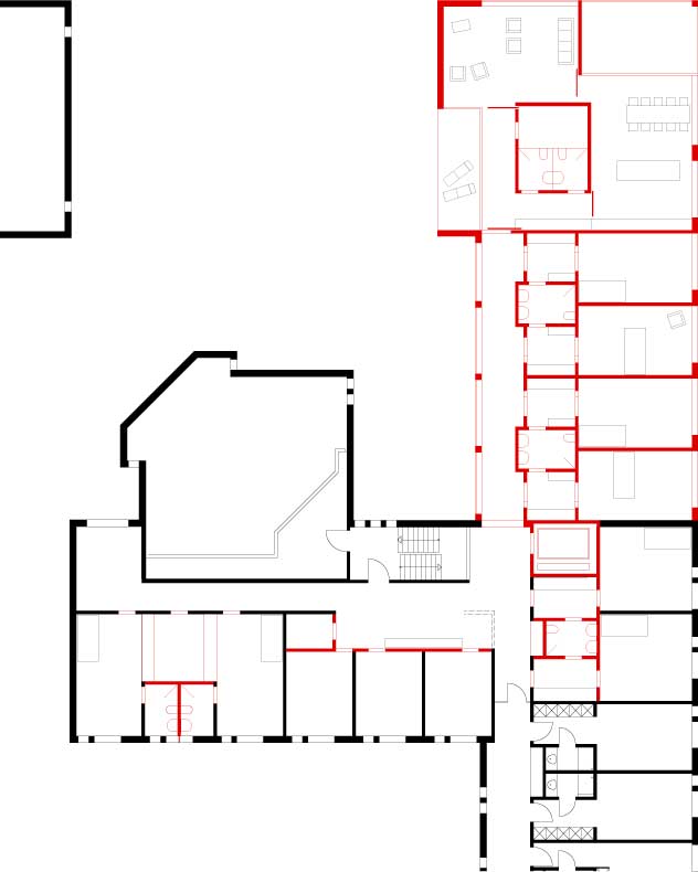
Erd- und Untergeschoss nehmen Gemeinschaftsräume auf. Beide Geschosse erhalten je einen direkten Zugang zum Garten. Die neue Wohngruppe im Obergeschoss ist dreiseitig orientiert. Die direkte Zuordnung der Nasszellen zu je zwei Zimmern erhöht die geforderte Anzahl der Bäder nicht, der Benutzerkomfort dagegen steigt erheblich. Durch die entfallenden Waschtische in den Zimmern gewinnen diese zudem an Wohnlichkeit und lassen sich freier möblieren.












